707/18 Harrow Road Auburn, Unit for Sale
707/18 Harrow Road, Auburn
$535,000 to $565,000 - Price Guide
MOVE RIGHT IN - REFRESHED AND READY ON LEVEL 7
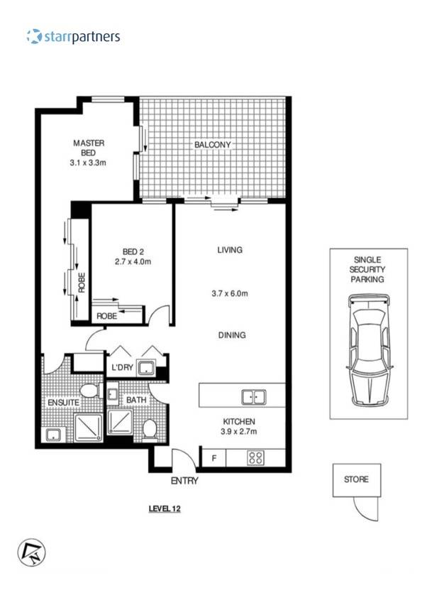
Ready to move into, and with a lovely sunny northern aspect, this modern and spacious apartment is located on the 7th floor of his complex in the heart of Auburn. The apartment offers 2 bedrooms, main with ensuite, modern kitchen with breakfast bar, and great size dining and living area opening up onto a spacious undercover and private balcony with room for entertaining and stunning northerly views.
With fully tiled bathrooms, and balcony access from the main bedroom, internal laundry, and security parking with a 19sqm car space and 7sqm storage cage, this unit, located in the heart of Auburn to the station and shopping centre, has plenty to offer the investor or owner occupier.
* On level 7 with great views and northern aspect
* Total size - 93sqm plus carspace and storage
* Toatal sqm as per strata plan - 119sqm
* Combined lounge and dining opening to balcony
* Open plan gas kitchen with breakfast bar
* Nice undercover north facing balcony and views
* Stone benchtops and quality gas appliances
* Large main bedroom with built-in robe and ensuite
* Quality fully tiled bathroom, Internal laundry
* Split system air conditioning, video intercom
* Potential Rental Return: $740 to $780 per week
* Water Rates $211pq | Council Rates $393pq | Strata $1007pq
DISCLAIMER: Whilst every effort has been made to ensure the accuracy and thoroughness of the information provided to you in our marketing material, we cannot guarantee the accuracy of the information provided by our Vendors, and as such, Starr Partners Auburn makes no statement, representation or warranty, and assumes no legal liability in relation to the accuracy of the information provided. Interested parties should conduct their own due diligence in relation to each property they are considering purchasing. All photographs, floorplans, maps and images are representative only, for marketing purposes.


