Lovingly held by the same family for the past seventeen years, this beautifully maintained home is tucked away in a peaceful cul-de-sac surrounded by quality residences. Showcasing a spacious and contemporary floorplan, the home offers versatile living zones, generous outdoor entertaining areas and five well-proportioned bedrooms to comfortably accommodate the whole family. With leafy parklands just moments away, this inviting residence creates an ideal setting for growing families or multi-generational living in a quiet, family-friendly street.
Key features:
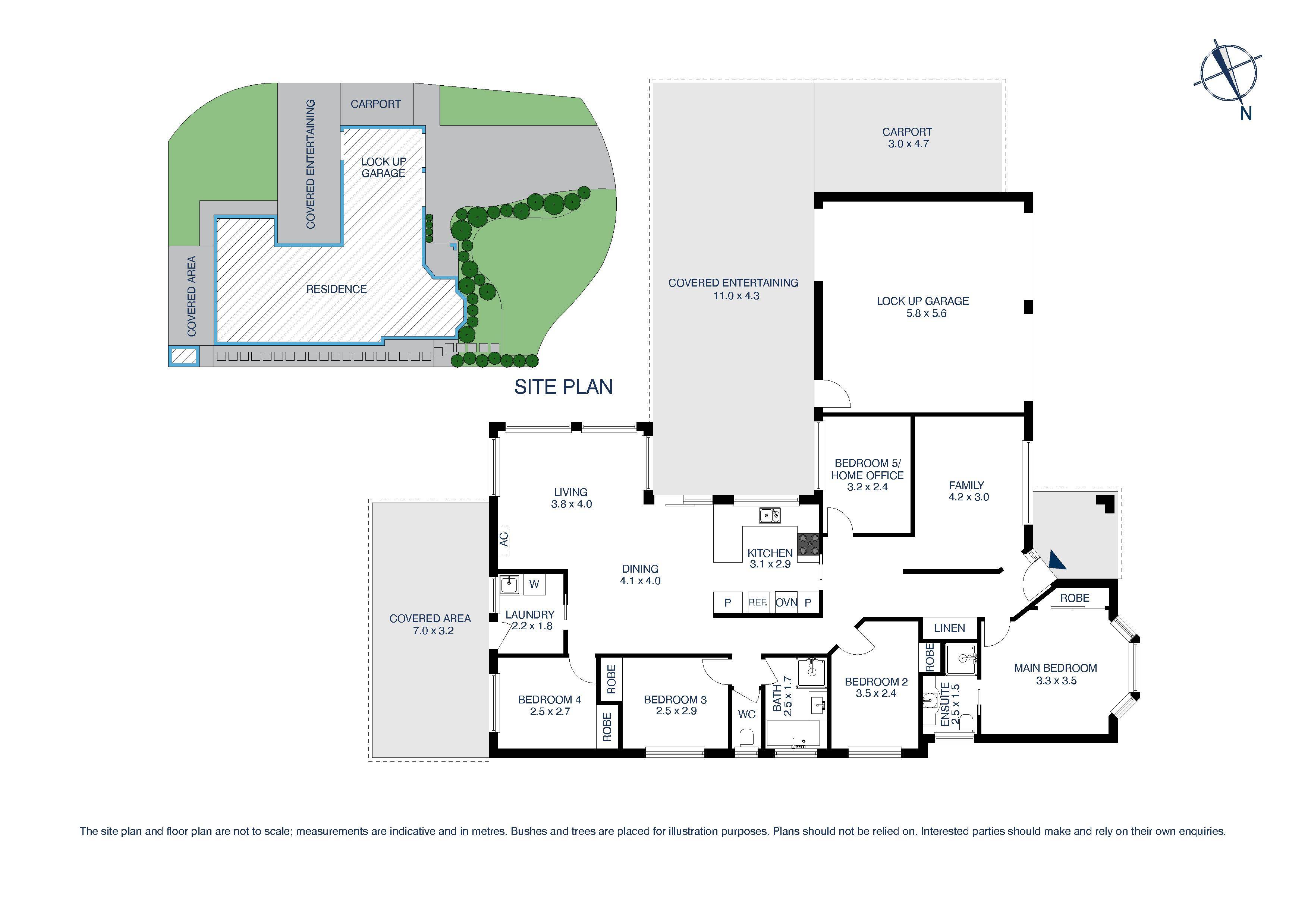
- Four generous bedrooms fitted with built-in robes
- Versatile fifth bedroom ideal as a guest room or dedicated home office
- Private master suite complete with its own ensuite bathroom
- Spacious kitchen featuring gas cooking, expansive bench space and ample storage solutions
- Multiple lounge/dining zones, allowing flexibility for formal and casual living
- Central family bathroom with bath and shower, separate toilet
- Expansive undercover entertaining area, ideal for year-round gatherings
- Double lock-up garage plus carport
- Side access to the backyard, ideal for boats, trailers and off-street parking
- Quiet cul-de-sac location close to local playgrounds and parklands
- Quality schooling, dining options and other amenities nearby
- Set on a manicured 550m2 corner block
